12 Shelley Street, SYDNEY

Barangaroo Fringe Café Opportunity | Lobby Activation

A substantial fully fitted café opportunity positioned on the edge of Barangaroo within a tightly held A Grade commercial building.

Occupying a strategic position at 12 Shelley Street, the tenancy benefits from immediate access to Wynyard Walk and seamless connectivity to Wynyard Station and the CBD core. Surrounded by institutional-grade office towers including the 14,000 sqm American Express building, the location delivers a concentrated weekday workforce and consistent trade.

Available Tenancy
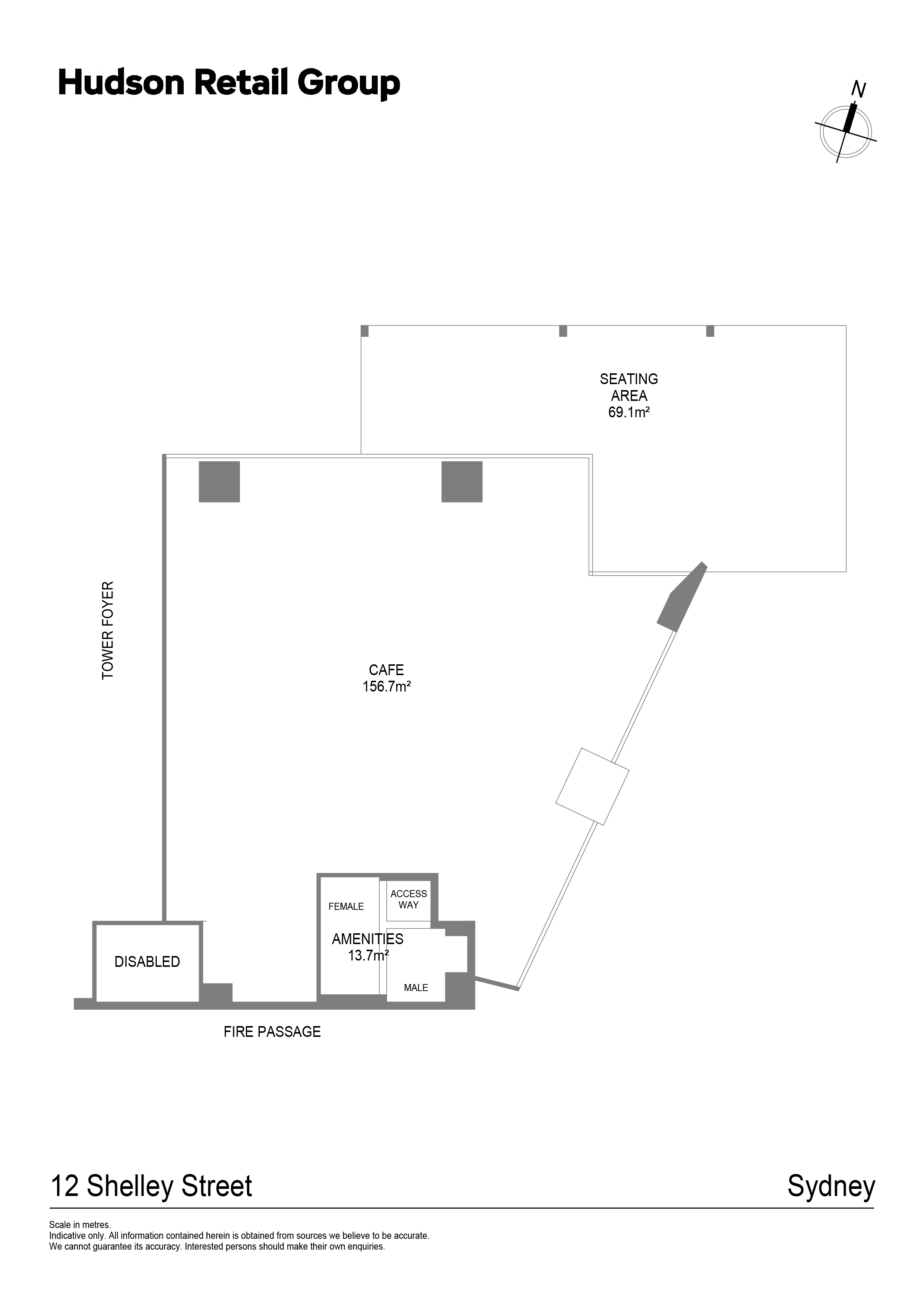
• Total area approximately 225.8 sqm
• 156.7 sqm internal café area
• 69.1 sqm designated seating area
• 13.7 sqm amenities
• Fully fitted lobby café handover
• Air conditioning, exhaust, gas and grease trap in place
• Immediate availability

Why 12 Shelley Street?
• Positioned between Barangaroo and the CBD financial core
• Established A Grade commercial catchment with major corporate anchors
• Proven weekday trade environment supported by dense office population

This is a considered hospitality platform within a high-calibre commercial address, suited to operators seeking scale, visibility, and long-term positioning in Sydney’s western CBD corridor.

All measurements are approximate as shown in written copy, info sheet and on floorplans.

Get Directions

Talk to us

Our team combines industry knowledge with a hands-on approach to ensure every client gets the attention and results they deserve. We are your partners.

Archie McDonald

Archie McDonald

Matt Hudson

Matt Hudson

Leasing Opportunities (20)

Explore what’s new to the market

View listings below

For Lease

Iconic Corner Flagship in the Heart of Double Bay

2-10 Bay Street, DOUBLE BAY NSW 2028

For Lease

Barangaroo Fringe Café Opportunity | Lobby Activation

12 Shelley Street, SYDNEY NSW 2000

For Lease

Prime High Street Position in Balmain’s Retail Core

348 Darling Street, BALMAIN NSW 2041

For Lease

Prime Corner Retail at the Gateway to Double Bay

Shop 1/27 Cross Street, DOUBLE BAY NSW 2028

For Lease

A Ground Floor Restaurant in Sydney’s Commercial Core

Tenancy 2, 50 Pitt Street, SYDNEY NSW 2000

For Lease

Flagship Darling Harbour Hospitality Opportunity Within The Iconic Ribbon Building

35 Wheat Road, SYDNEY NSW 2000

For Lease

Turnkey CBD Food & Beverage Opportunity Opposite Gadigal Metro

201 Elizabeth Street, SYDNEY NSW 2000

For Lease

A Rare Beachfront Flagship Opportunity in Port Melbourne

103 Beach Street, PORT MELBOURNE VIC 3207

For Lease

Corner Hospitality Landmark in Surry Hills

233 Riley Street, SURRY HILLS NSW 2010

Under Offer

For Lease

Prominent Corner Retail at The Rex, Potts Point

Shop 5/50 Macleay Street, POTTS POINT NSW 2011

Under Offer

For Lease

A Distinctive Retail Space Beneath 25hours Hotel

1-11 Oxford Street, PADDINGTON NSW 2021

For Lease

Last Remaining Retail Space | Pienza Neutral Bay Village Precinct

Shop 6/12 Waters Road, NEUTRAL BAY NSW 2089

For Lease

Premium Fitness & Wellness Space in Sydney’s CBD

1 Shelley Street, SYDNEY NSW 2000

Under Offer

For Lease

Sydney’s Next Landmark Venue

14 Loftus Street, SYDNEY NSW 2000

For Lease

Prime Restaurant and Café Opportunity in the Heart of Surry Hills

202 Devonshire Street, SURRY HILLS NSW 2010

Under Offer

For Lease

A Rooftop Oasis in the Heart of Sydney CBD

The Atrium – Restaurant & Alfresco Bar/309-321 Kent Street, SYDNEY NSW 2000

For Lease

High-Exposure Retail at Iglu Redfern

88 Regent Street, REDFERN NSW 2016

For Lease

Premium Retail at the Village Heart in Maya, Mona Vale

19 Bungan Street, MONA VALE NSW 2103

For Lease

A Landmark Retail Opportunity in Sydney CBD

Shop 2/347 Kent Street, SYDNEY NSW 2000

For Lease

Prime Retail Opportunities on Oxford Street

171 Oxford Street, DARLINGHURST NSW 2010